icon_pruefung.png

Prüfung & Kalibrierung

Labore und Prüfvorrichtungen zur Kalibrierung von meteorologischen Sensoren aller Art

Windkanal

TF8420n3

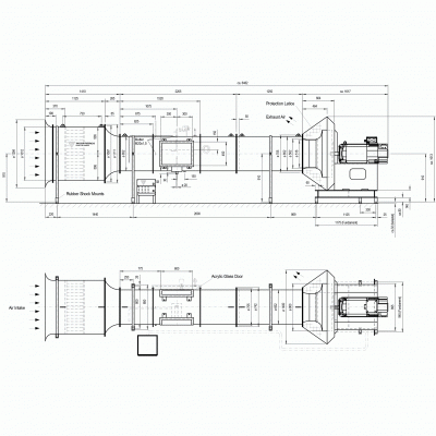
Im Windkanal können konventionelle Cupanemometer und Ultraschallanemometer kalibriert werden. Die offene Bauart, mit der Messstrecke im Ansaugweg, ermöglicht kompakte Abmaße. Durch die kompakten Abmaße ist der Windkanal für den Einsatz in relativ kleinen Räumen gut geeignet. Durch die strömungsoptimierte Bauweise wird innerhalb des Messbereichs eine nahezu turbulenzfreie Strömung erzeugt. Als Antrieb wird ein Asynchron-Servo Motor verwendet, der über einen weiten Drehzahlbereich regelbar ist. Eine Anlaufmessung ist ab 0,15 m/s möglich. Die maximale Windgeschwindigkeit innerhalb des Messbereiches beträgt 50 m/s.

Je nach Kundenanforderung kommen unterschiedliche Referenzmessgeräte (Differenzdruckmesser, thermische Anemometer, Laser-Doppler Anemometer) und Zubehörkomponenten (Prüflingadapter, PC, Drucker, Bildschirm usw.) zum Einsatz. Ebenso werden kundenspezifische Softwarelösungen zum teil- oder vollautomatisierten Betrieb angeboten.

Wir sind stolz darauf, dass Wetterdienste weltweit unsere Kanäle zur Kalibrierung einsetzen.

Für ein Beispiel wie ein typisches Prüflabor aussehen kann, laden Sie sich bitte die Datei Roomlayout herunter.

  • technische Spezifikation
  • Ausführungen
  • Messbereich: 0,15...50 m/s
  • Entspr. Re.-zahl: 0,65 x 10⁴...2,15 x 10⁶
    (bei pL = 1013 hPa und tL = 20 °C)
  • Turbulenzgrad (bei einer Auflösung von 0,5 Hz gemessen): bei v = 3 m/s: ± 0,4 %
    bei v = 10 m/s: ± 0,4 %
    bei v = 40 m/s: ± 0,3 %
  • Antriebsleistung: 58 kW (bei Umgebungstemp. 20 °C,
    1013 hPa und Nennbetriebstemperatur am Motor)
  • Regelung: Thyristor
  • Stromanschluss: 400 V 50 Hz AC/3 Ph,
    max. 50 kVA
  • Gewichte: Windkanal inkl. Antrieb: ca. 1400 kg
    Schaltschrank: ca. 275 kg
zurück weiter

8421

P84211

8421

P84203

Ansaugdüse

8421

P84217

Einzelsektion 2

8421

P84214Sectionmiddle

Sektion 3 mit Prüfling

Windkanal

P84212Motor

Motor

8421

P84213Motor

Radialgebläse und Motor

8421

P84216TASFCS

Flow Calculation- und Thermal Anemometer System

8421

P84219Software Screen

Software Oberfläche

8421

8421MazeichnungTest2

Maßzeichnung